Architectural layout of hotel building plan is given in this 2D AutoCAD DWG drawing file. Download the Autocad file.
Description
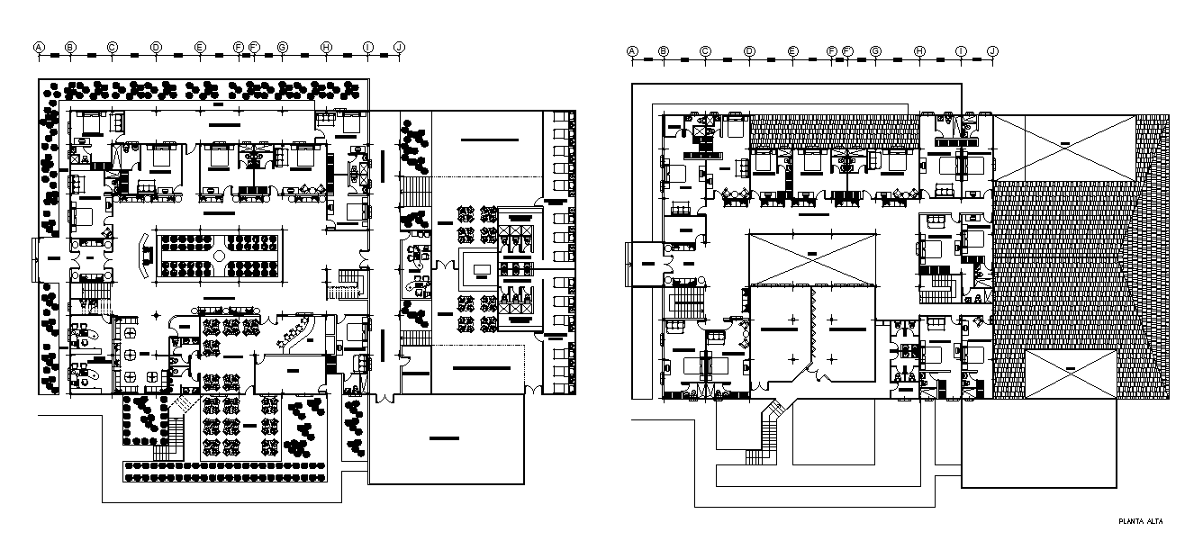
Architectural layout of hotel building plan is given in this 2D AutoCAD DWG drawing file. The length and breadth of the plan is 35m and 40m respectively. This plan consists of internal corridor, external corridor, reception area, store, bar, kitchen, service area, bathroom for male and female, dressing room, shower room, office room, vacation activities patio, hall, side walk, 7 bedrooms with attached toilets are available in this layout. For more details download the 2D Autocad DWG drawing file. Thank you for downloading the 2D AutoCAD DWG drawing file and other CAD program files from our website.
Uploaded by:

