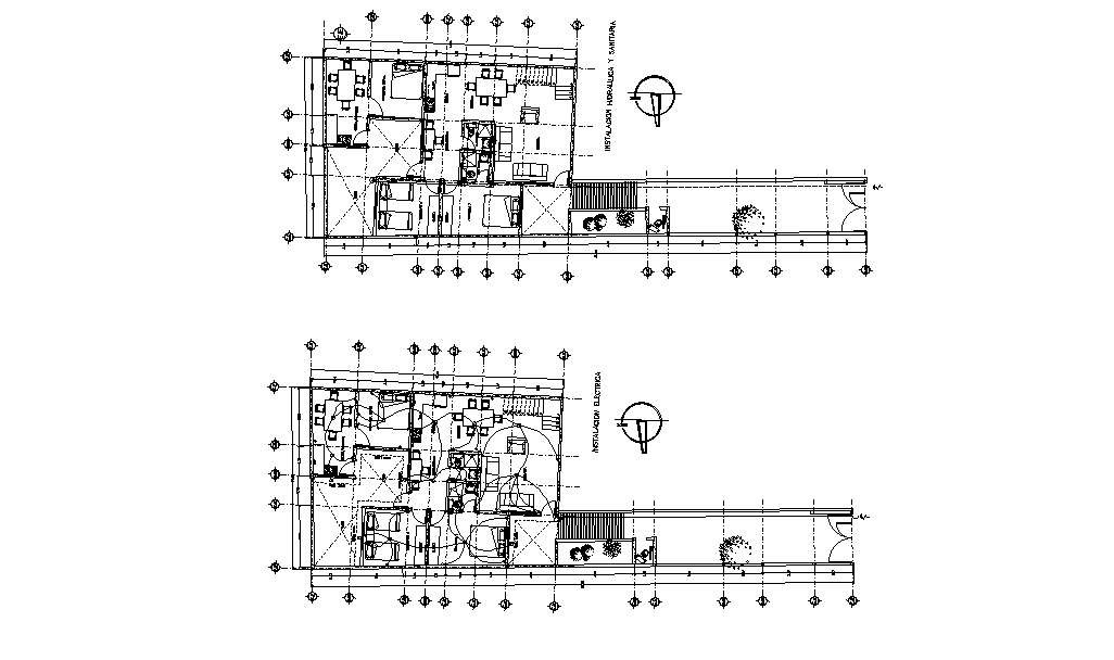
Hydraulic and sanitary installation of the house plan is given in this 2D Autocad drawing file. Download the Autocad drawing file.
Description
Hydraulic and sanitary installation of the house plan is given in this 2D Autocad drawing file. 14x11m gaby house plan detail is given in this 2D Autocad DWG drawing file. Electrical layout of the plan is given in this AutoCAD. The length and breadth of the plan is 14m and 11m respectively. This plan consists of kitchen, dining, breakfast area, living hall, bedrooms with attached toilet and garden. In this plan two houses are available. For more details download the 2D AutoCAD DWG drawing file. Thank you for downloading the 2D AutoCAD DWG drawing file and other CAD program files from our website.
Uploaded by:

