75x22m restaurant cum hotel plan is given in this 2D Autocad DWG drawing file. Download the Autocad drawing file.
Description
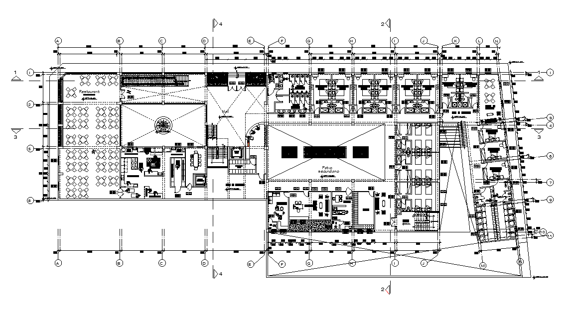
75x22m restaurant cum hotel plan is given in this 2D Autocad DWG drawing file. The length and breadth of the plan is 75m and 22m respectively. At restaurant, dining, kitchen area, fruits and vegetable shelf, washing and drying, food delivery area and served dishes are mentioned. In Right side of plan double rooms with attached toilet, office room, secretary room, administrative room, and service rooms are mentioned. Download the 2D Autocad DWG drawing file. Thank you for downloading the 2D AutoCAD DWG drawing file and other CAD program files from our website.
Uploaded by:

