Armenian Church trauma centre hospital building is given in this 2D Autocad drawing. Download the Autocad file.
Description
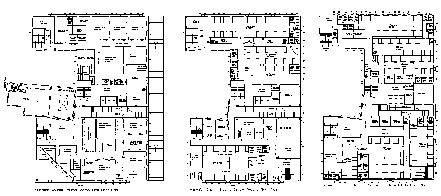
Armenian Church trauma centre hospital building is given in this 2D Autocad drawing. This is multispecialty hospital. In this hospital building neuro surgery, general surgery, orthopedics surgery, emergency ward, minor and major operation theatre, Single room, double room for patients, outpatient pharmacy dispensary, consulting room, reception, patient’s rest room, admin and med records, registration boxes, public dining and other details are given in this 2D Autocad DWG drawing file. For more details download the 2D AutoCAD DWG drawing file. Thank you for downloading the 2D AutoCAD DWG drawing file and other CAD program files from our website.
Uploaded by:

