24x8m 3BHK house plan is given in this 2D Autocad DWG drawing file. This plan is given with beautiful garden. Download the Autocad file.
Description
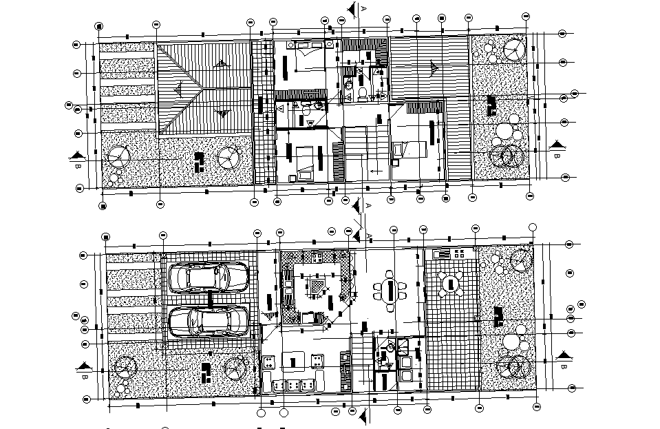
24x8m 3BHK house plan is given in this 2D Autocad DWG drawing file. This plan is given with beautiful garden. This is G+1 house plan. At ground floor car parking, accesss way, kitchen, dining, living hall, one common toilet are provided. At first floor 3BHK bedrooms, bathroom and garden are available. Other details are given in this file. Download the 2D Autocad DWG drawing file. Thank you for downloading the 2D AutoCAD DWG drawing file and other CAD program files from our website.
Uploaded by:

