9x10m house plan section view is given in this 2D Autocad drawing file. Download now.
Description
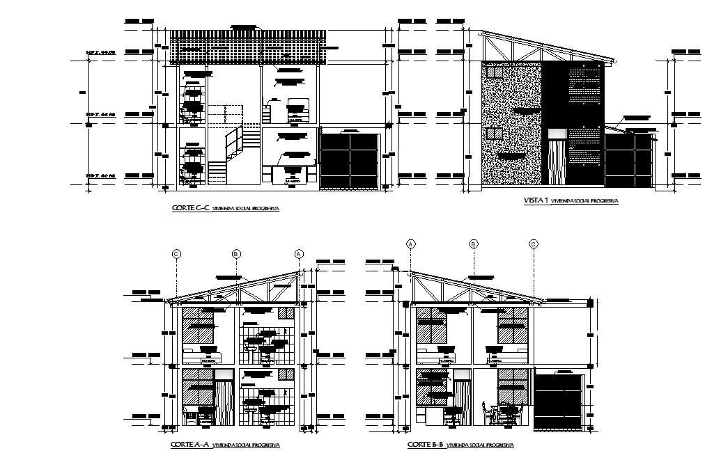
9x10m house plan section view is given in this 2D Autocad drawing file. The total height of the building is 7.57m. Materials are mentioned which is used for construction. The height of building is up to first floor level is 6.35m. Download the Autocad drawing file. Thank you for downloading the Autocad drawing file and other CAD program files from our website.
Uploaded by:

