Workshop parking plan details are given in this Autocad drawing model. Download now.
Description
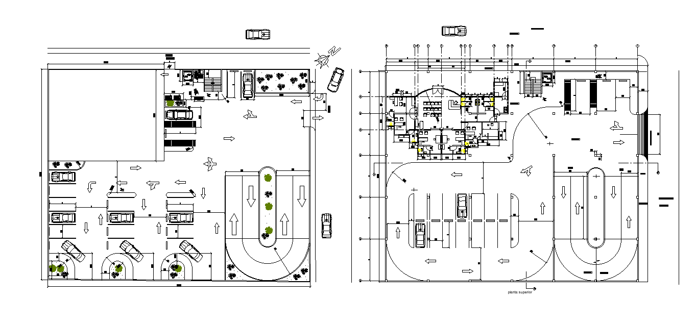
Workshop parking plan details are given in this Autocad drawing model. The length and breadth of the plan is 50’ and 41’ respectively. Direction of parking, waiting room, lounge are mentioned in this drawing model. Download the Autocad drawing file. Thank you for downloading the Autocad drawing file and other CAD program files from our website.
Uploaded by:

