Apartment detail drawing provided in this AutoCAD file. Download the AutoCAD file.
Description
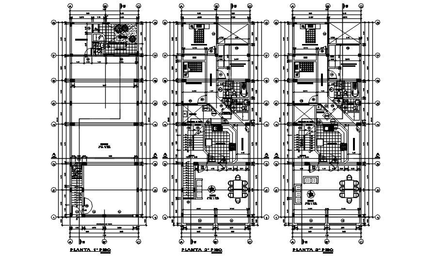
Apartment detail drawing provided in this AutoCAD file. this file consists of a living room, dining, kitchen, and bedroom detail with staircase detail given with dimensions and specifications. this can be used by architects and engineers. Download this 2d AutoCAD drawing file.
Uploaded by:

