College and car parking details are given in this 2D Autocad drawing file. Download now.
Description
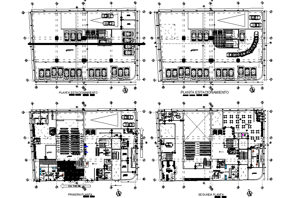
College and car parking details are given in this 2D Autocad drawing file. Auditorium details are given. Administrative room, reception, library, secretary room, toilet for male and female are available in this drawing file. Dining room is provided. Other details are given in this drawing model. Download the Autocad drawing file. Thank you for downloading the Autocad drawing file and other CAD program files from our website.
Uploaded by:

