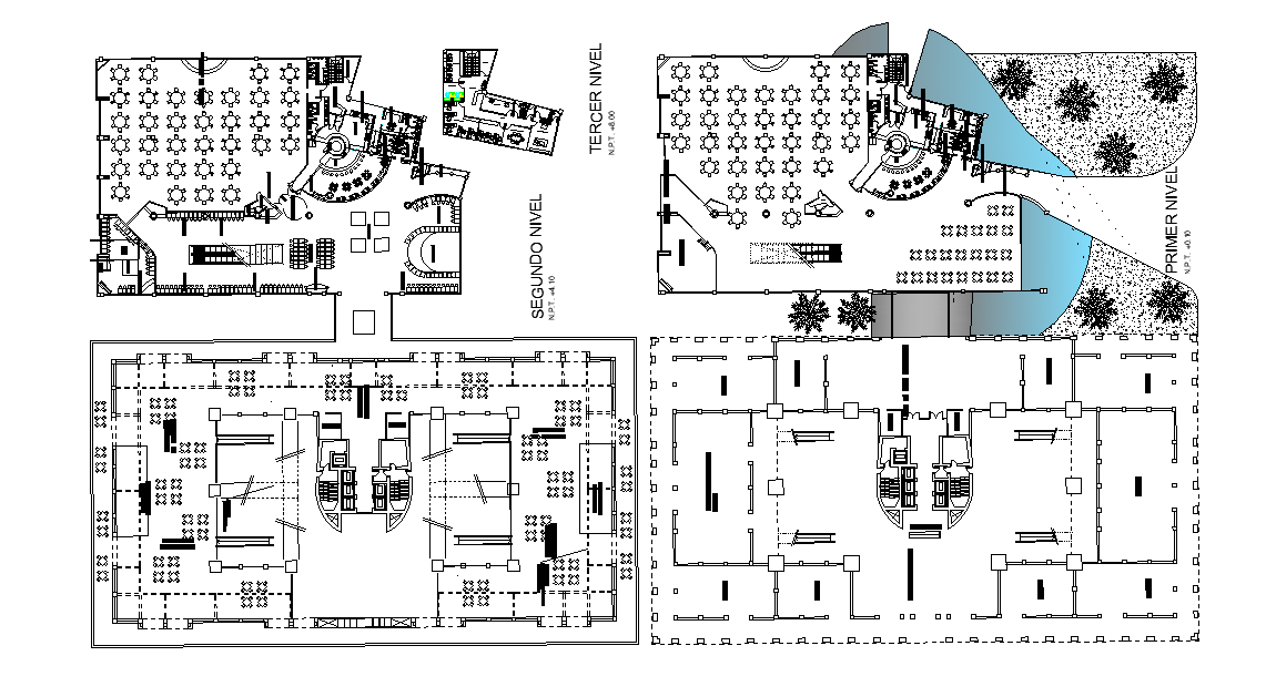
The restaurant floor plan detail drawing separated in this AutoCAD file. Download the AutoCAD file.
Description
The restaurant floor plan detail drawing separated in this AutoCAD file. this file consists of staircase detail and dinning area detail drawing given with dimensions and specifications. this can be used by architects and engineers. Download this 2d AutoCAD drawing file.
Uploaded by:

