Floor plan drawing of industrial plant presented in this AutoCAD file. Download the AutoCAD file.
Description
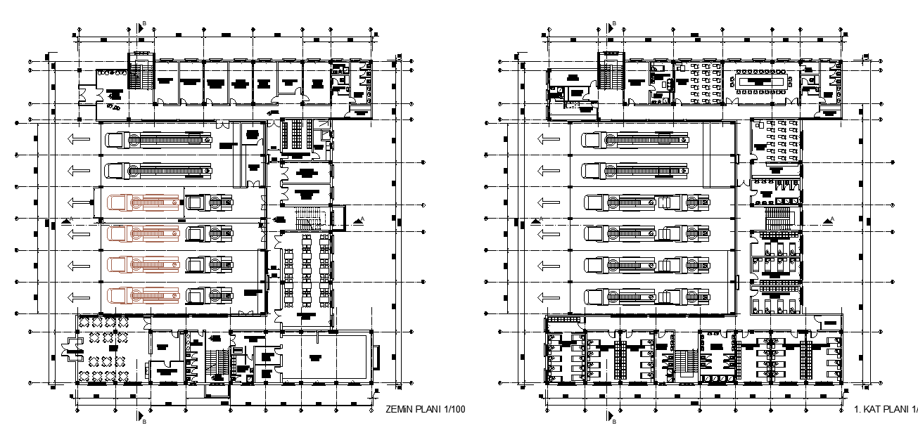
Floor plan drawing of industrial plant presented in this AutoCAD file. this file consists of services and utilities detail and parking drawing plan given with dimension and specification. this can be used by architects and engineers. Download this 2d AutoCAD drawing file.
Uploaded by:

