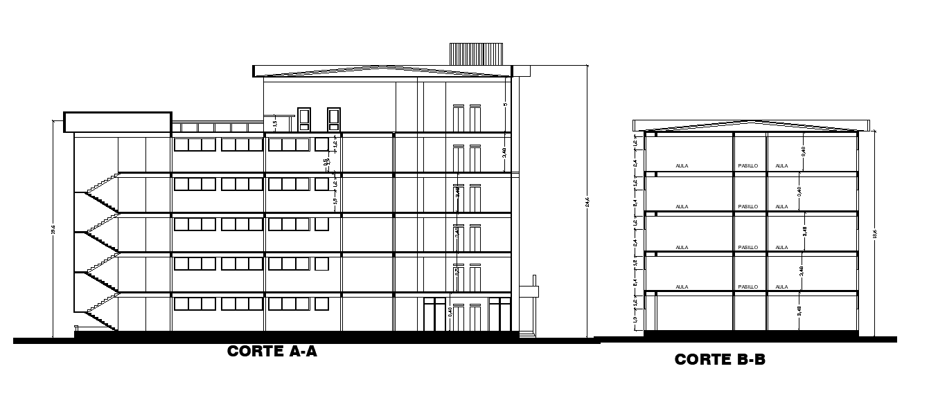
School interior section drawing specified in this AutoCAD file. Download the AutoCAD file.
Description
School interior section drawing specified in this AutoCAD file. this file consists of door window detail and facade detail drawing with dimensions and specifications. this can be used by architects and engineers. Download this 2d AutoCAD drawing file.
Uploaded by:

