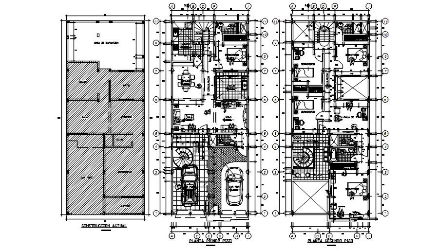
8x20m house plan beam layout is given in this drawing model. Download the 2D Autocad file.
Description
8x20m house plan beam layout is given in this drawing model. In the first model column locations are mentioned. Measurements are given in this drawing model. Download the 2D Autocad drawing model. Thank you for downloading the 2D Autocad files and other CAD program files from our website.
Uploaded by:

