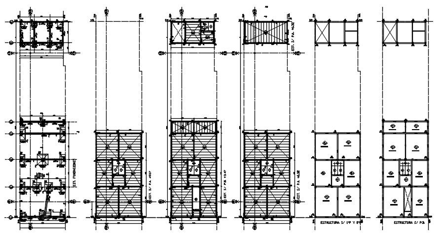
Footing detail is given in this Autocad drawing file. Download the 2D Autocad file.
Description
Footing detail is given in this Autocad drawing file. Size of footing is mentioned in this drawing model. Beam layout and slab layout is given in this drawing model. Download the 2D Autocad drawing model. Thank you for downloading the 2D Autocad files and other CAD program files from our website.
Uploaded by:

