Ground Floor Beam and Column Layout AutoCAD Drawing

Ground Floor Beam and Column Layout  AutoCAD Drawing
Profile

Uploaded by:

Meera

Description
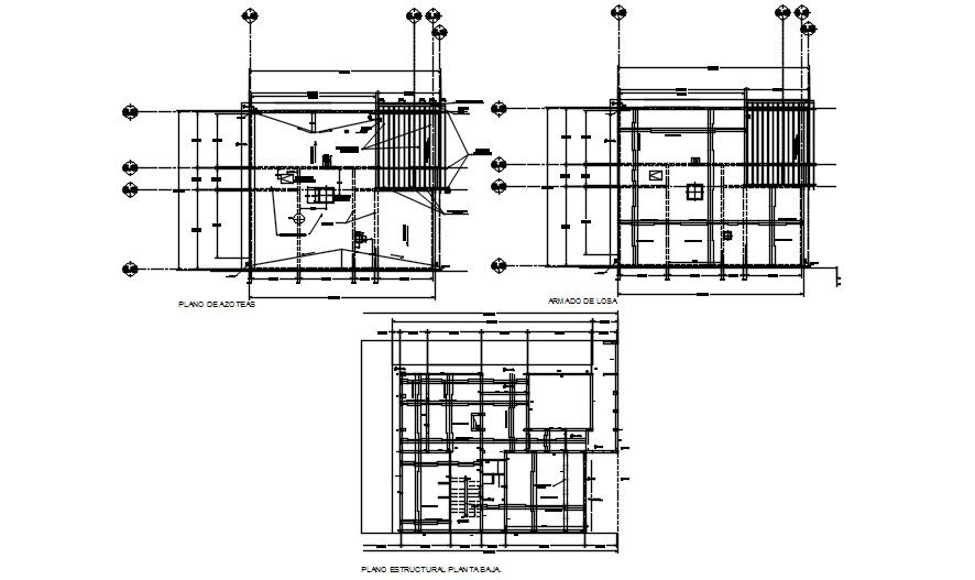
Beam and column layout of the ground floor plan is given in this Autocad drawing file. This is house plan. The length and breadth of the first floor is 20m and 15m respectively. For more details download the 2D Autocad drawing file. Thank you for downloading the 2D Autocad files and other CAD program files from our website.
Profile

Uploaded by:

Meera

find Latest

Related Files

WhatsApp Chat