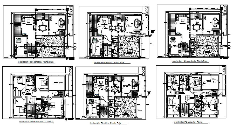
Hydro Sanitary installation of the ground floor plan is given in this Autocad drawing file. Download the Autocad drawing file.
Description
Hydro Sanitary installation of the ground floor plan is given in this Autocad drawing file. This is house plan. The length and breadth of the first floor is 20m and 15m respectively. For more details download the 2D Autocad drawing file. Thank you for downloading the 2D Autocad files and other CAD program files from our website.
Uploaded by:

