LOGIN
HOME
CATEGORIES
UPLOAD FILE
PRICING
HOUSE PLAN
ABOUT US
CONTACT US
House Project Detail
Home
Categories
Architecture
House Plan
House Project Detail
Uploaded by:
Priyanka
Patel
View Profile
View Profile
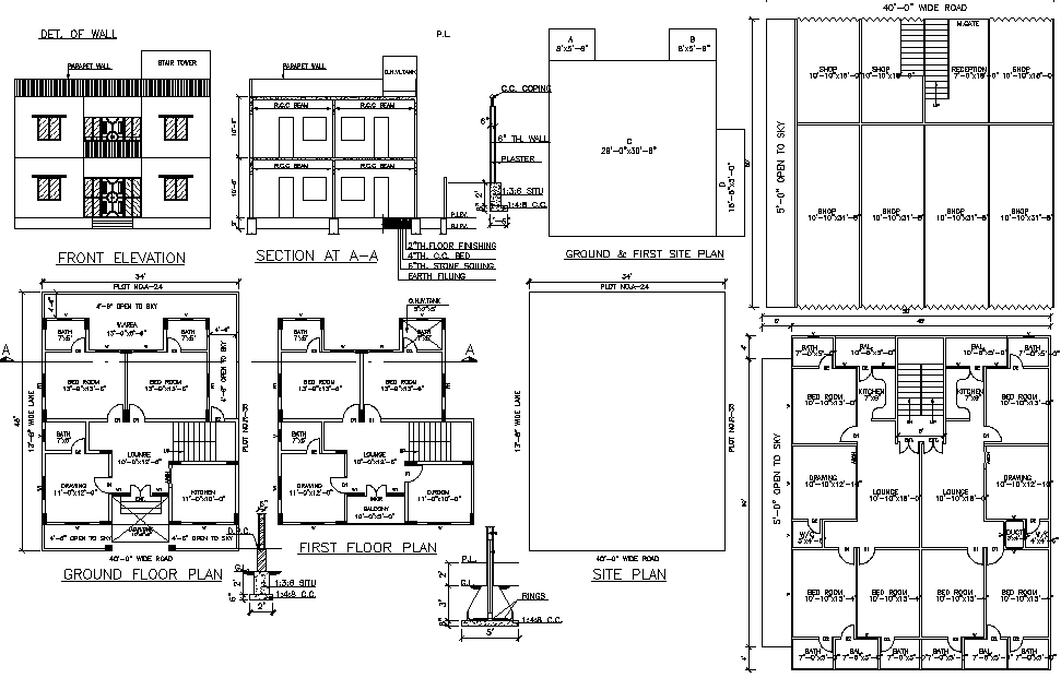
Description
This House detail in elevation, section , lay-out plan design Etc.
File Type:
DWG
File Size:
109 KB
Category::
Architecture
Sub Category::
House Plan
type:
Gold
Uploaded by:
Priyanka
Patel
View Profile
Download
Add to libary
find Latest
Related
Files