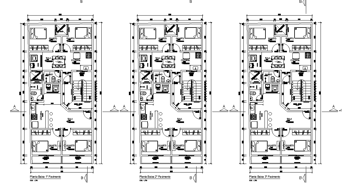
This AutoCAD drawing file stating Two blocks apartment typical floor plan. Download the AutoCAD file.
Description
This AutoCAD drawing file stating Two blocks apartment typical floor plan. this file consists of a furniture layout drawing with services, and utilities detail drawing given with dimensions and specifications. this can be used by architects and engineers. Download this 2d AutoCAD drawing file.
Uploaded by:

