30x10m apartment building plan is given in this Autocad drawing model.Download the Autocad file.
Description
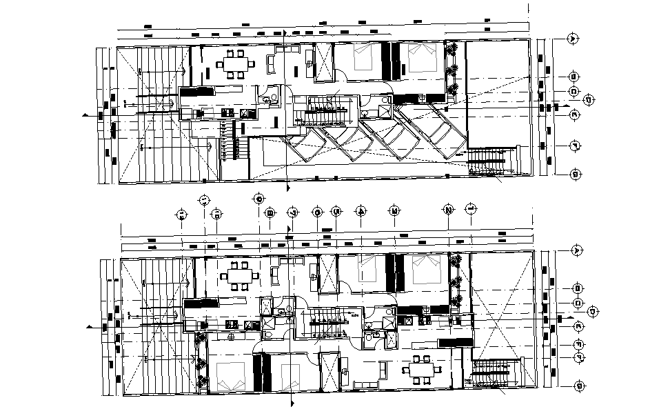
30x10m apartment building plan is given in this Autocad drawing model. The length and breadth of the plan is 30m and 10m respectively. In each floor two houses are available. These plans car parking, consists of living area, kitchen, dining, bedroom with attached toilet, common toilet, kid’s room with attached toilet are available. For more details download the 2D Autocad drawing file. Thank you for downloading the Autocad files and other CAD program files from our website.
Uploaded by:

