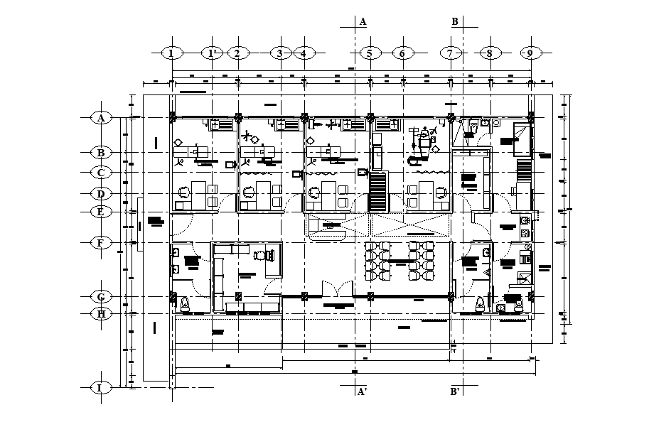
Small hospital building plan is given in this Autocad drawing file. Download the Autocad drawing file.

Small hospital building plan is given in this Autocad drawing file.  Download the Autocad drawing file.
Profile

Uploaded by:

Pavithra

Description
Small hospital building plan is given in this Autocad drawing file. The length and breadth of the plan is 19m and 13m respectively. This plan consists of consulting room, doctors room, nurse station, pharmacy, rest room for male and female, kitchen, dining area, scan room and other details are given in this drawing. Download the 2D Autocad drawing file. Thank you downloading the 2D AutoCAD DWG drawing file and other CAD program files from our website.
Profile

Uploaded by:

Pavithra

find Latest

Related Files

WhatsApp Chat