G+2 villa house plan is given in this Autocad drawing file.Download the Autocad 2D drawing file.
Description
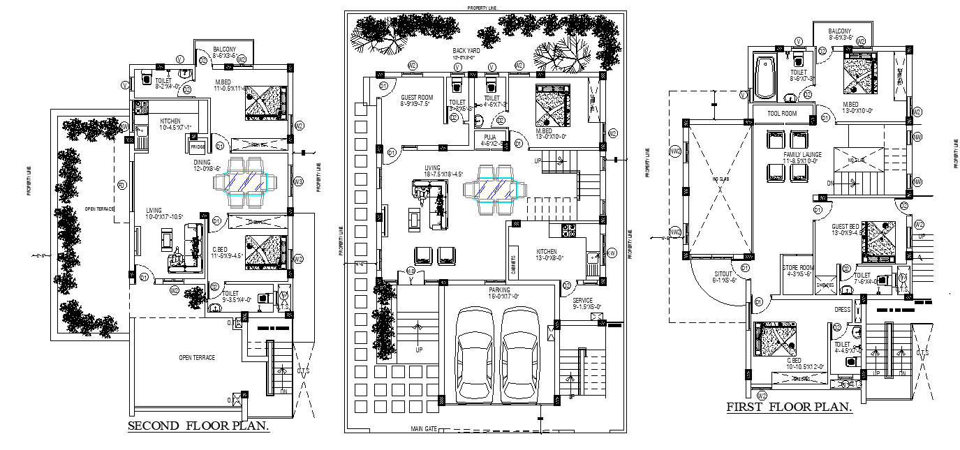
G+2 villa house plan is given in this Autocad drawing file. The length and breadth of the plan is 33’ and 48’ respectively. In the ground floor car parking, kitchen, dining, living area, service room, guest room with attached toilet, master bedroom with attached toilet, and backyard are available. In the first floor three bedrooms, family lounges, store room, sit out, toilets and dressing room are available. In the second floor two bedrooms with attached toilet, living room, dining, balcony, and open terrace are available. Download the 2D Autocad drawing file. Thank you downloading the 2D AutoCAD DWG drawing file and other CAD program files from our website.
Uploaded by:

