Section view of the 75x8m house plan is given in this 2D Autocad drawing file. Download the Autocad drawing file.
Description
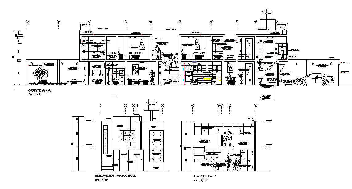
Section view of the 75x8m house plan is given in this 2D Autocad drawing file. Total height of the building is 6.1m. This is G+1 house plan. Elevation of the house is given. This section consists car parking, kitchen, garden, dining, bedrooms with attached toilet, and water closets. Download the 2D Autocad drawing file. Thank you for downloading the Autocad drawing file and other CAD programs from our website.
Uploaded by:

