The electrical layout of the Corporate office drawing presented in this AutoCAD file. Download the AutoCAD file.
Description
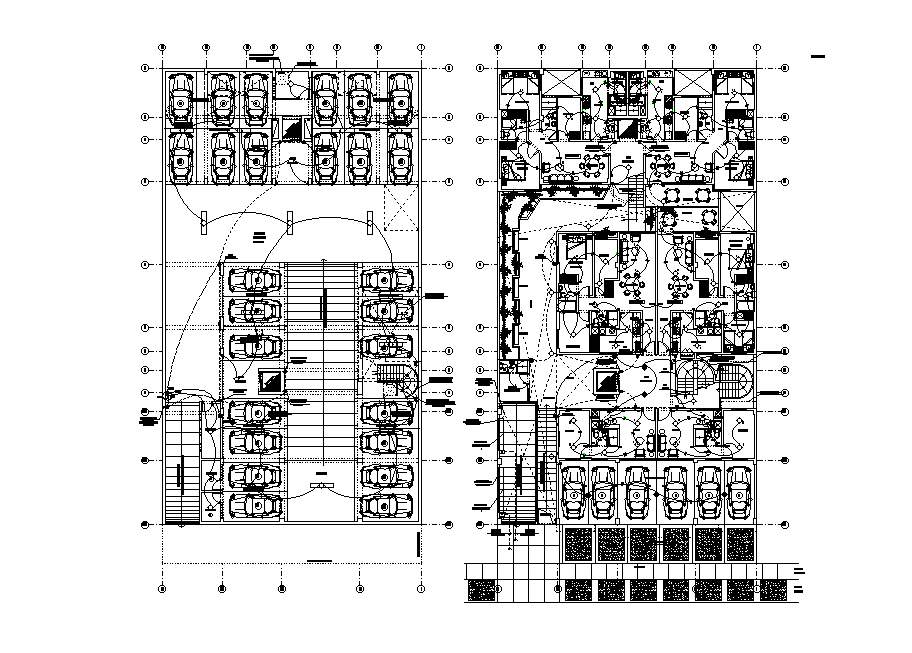
The electrical layout of the Corporate office drawing presented in this Autocad file. In this plan, basement parking layout, office room, a restroom for employees, cafeteria, kitchen, reception area, waiting room, and other details are given in this plan.this can be used by architects and engineer. Download the 2D Autocad drawing file. Thank you for downloading the AutoCAD drawing file and other CAD program files from our website.
Uploaded by:

