Completed bank plan is given in this Autocad drawing file. Download the Autocad drawing file.
Description
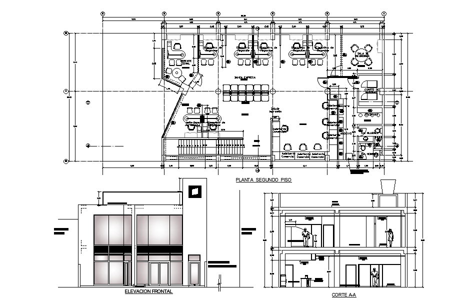
Completed bank plan is given in this Autocad drawing file. The length and breadth of the plan is 26m and 12m respectively. Zonal manager, business executive, banking company, meeting room, commercial assistant, rest room for male and female, waiting area and other details are given in this Autocad drawing model. For more details download the drawing file. Thank you for downloading the Autocad drawing file and other CAD programs from our website.
Uploaded by:

