Section view of the complete bank agency project is given in this Autocad drawing file. Download the Autocad file.
Description
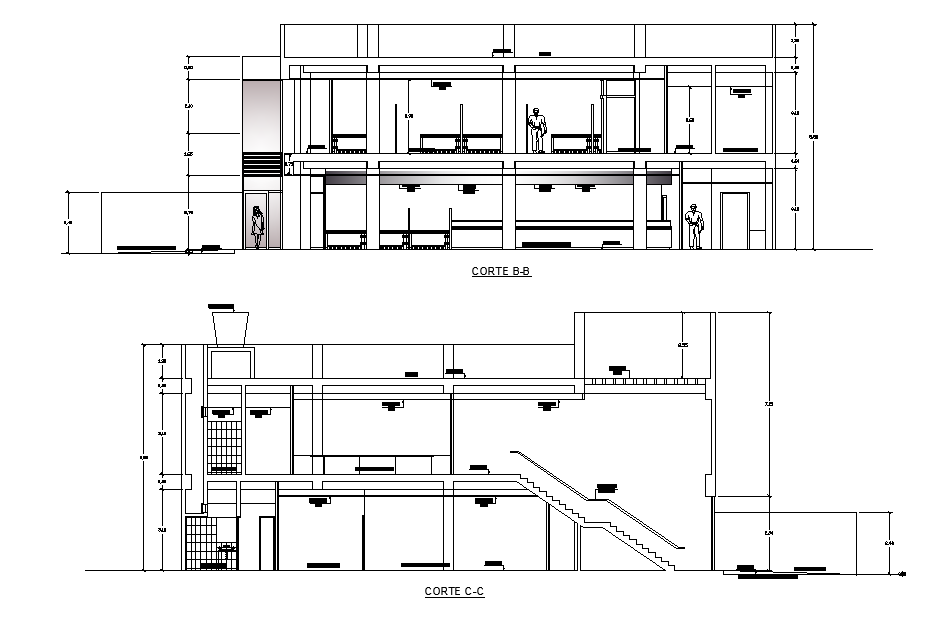
Section view of the complete bank agency project is given in this Autocad drawing file. Total height of the building is 10m. 8.8m height from ground floor level to top roof level. This is G+1 building. Drywall crimp is given inside of the roof. Other details are given in this Autocad drawing file. Download the Autocad drawing file. Thank you for downloading the Autocad drawing file and other CAD program files from our website.
Uploaded by:

