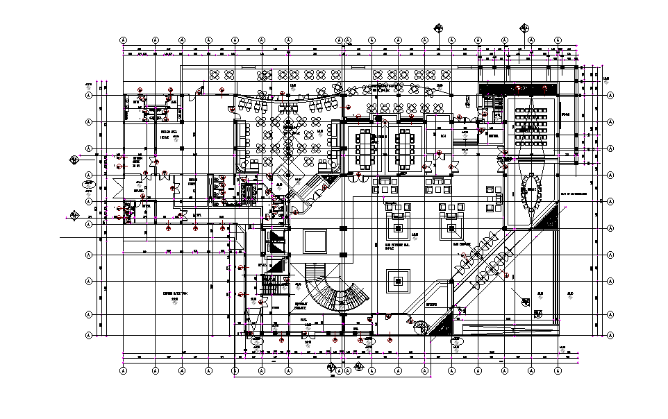
The hotel furniture layout plan defined in this AutoCAD drawing file. Download the AutoCAD file.

The hotel furniture layout plan defined in this AutoCAD drawing file.  Download the AutoCAD file.
Profile

Uploaded by:

Rachna Jilka

Description
The hotel furniture layout plan defined in this AutoCAD drawing file. in this file, floor and furniture design which consists of GYM, restaurant, swimming poll, admin offices, reception area, waiting for the zone, bedrooms, and toilet. Thank you for downloading the AutoCAD file and another CAD program from our website.
Profile

Uploaded by:

Rachna Jilka

find Latest

Related Files

WhatsApp Chat