20x8m home plan is given in this Autocad drawing model. Download the Autocad file.

20x8m home plan is given in this Autocad drawing model.  Download the Autocad file.
Profile

Uploaded by:

Meera

Description
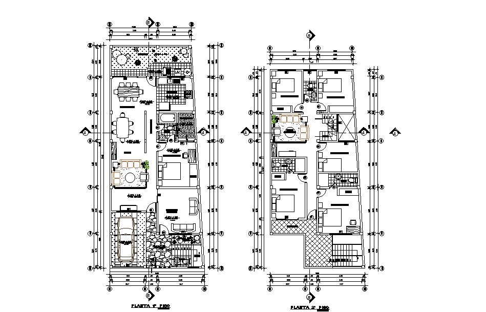
20x8m home plan is given in this Autocad drawing model. This is G+1 house plan. In the ground floor car parking, living area, family lounge area, garden, kitchen, dining room, and master bedroom with attached toilet are available. In the first floor three guest rooms, master bedroom, with attached toilet, kid’s room with attached toilet and living area are available. For more details download the Autocad drawing file. Thank you for the Autocad drawing file and other CAD program files from our website.
Profile

Uploaded by:

Meera

find Latest

Related Files

WhatsApp Chat