Section view of 20x8m home plan is given in this Autocad drawing model. Download the Autocad file.
Description
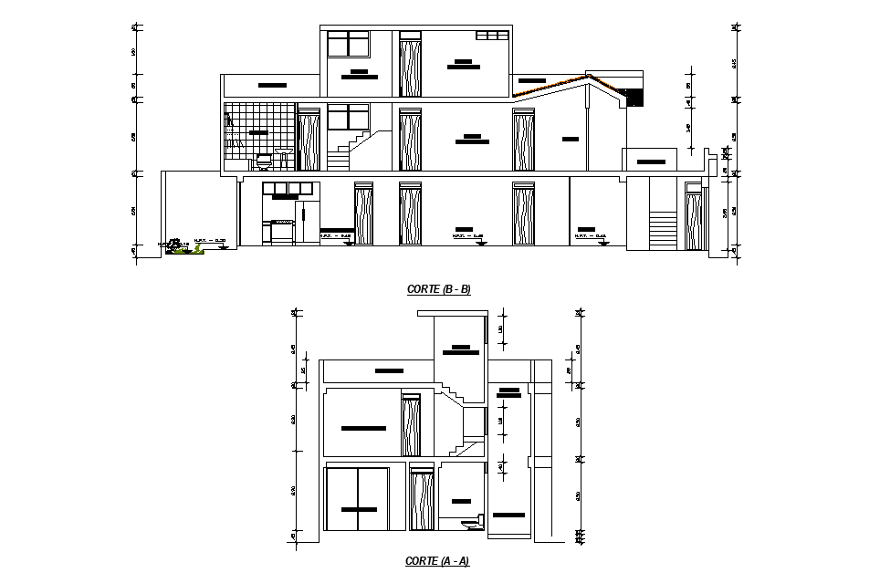
Section view of 20x8m home plan is given in this Autocad drawing model. Total height of the building is 5.8m. This is G+1 house plan. In the ground floor car parking, living area, family lounge area, garden, kitchen, dining room, and master bedroom with attached toilet are available. In the first floor three guest rooms, master bedroom, with attached toilet, kid’s room with attached toilet and living area are available. For more details download the Autocad drawing file. Thank you for the Autocad drawing file and other CAD program files from our website.
Uploaded by:

