The apartment section detail the drawing stated in this AutoCAD file. Download the AutoCAD file.
Description
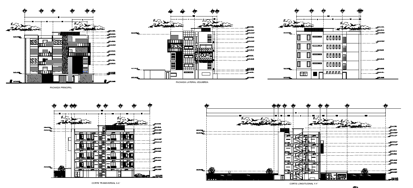
The apartment section detail the drawing stated in this AutoCAD file. this file consists of exterior view, interior view, door window detail, glass window elevation detail, with dimensions and specifications. this can be used by architects and engineers. Download this 2d AutoCAD drawing file.
Uploaded by:

