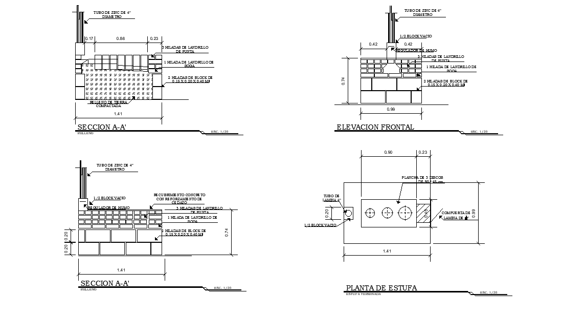
Kitchen staves mounting detail drawing stated in this AutoCAD file. Download DWG File
Description
Kitchen staves mounting detail drawing stated in this AutoCAD file. this file consists of gas pipeline connection detail given with detailed dimensions and specifications. this can be used by architects and engineers. Download this 2d AutoCAD drawing file.
Uploaded by:

