Corporate office floor plan drawing specified in this AutoCAD file. Download DWG File
Description
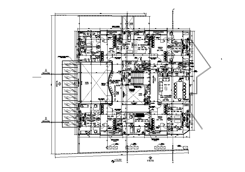
Corporate office floor plan drawing specified in this AutoCAD file. this file consists of a conference hall, separate cabins, services detail and utilities detail drawing given with dimensions and specifications. file. this can be used by architects and engineers. Download this 2d AutoCAD drawing file.
Uploaded by:

