The apartment floor plan presented in this AutoCAD file. Download the AutoCAD drawing file.
Description
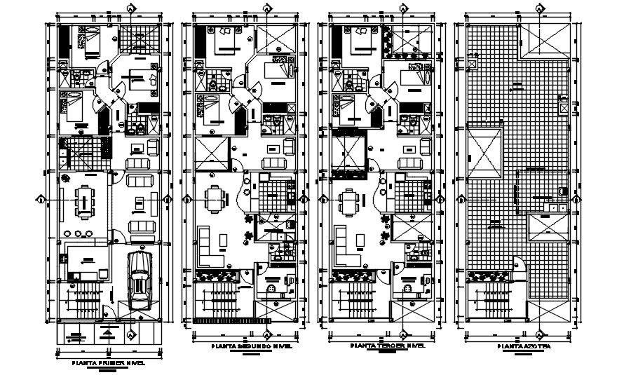
The apartment floor plan presented in this AutoCAD file. this file consists of a furniture layout drawing with services, and utilities detail drawing given with dimensions and specifications. this can be used by architects and engineers. Download this 2d AutoCAD drawing file.
Uploaded by:

