Commercial building section detail drawing presented in this AutoCAD file. Download the AutoCAD drawing file.
Description
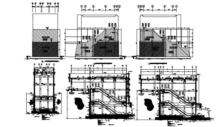
Commercial building section detail drawing presented in this AutoCAD file. in this drawing, services detail, and utilities detail drawing given with detailed dimensions and specifications. this can be used for architecture and landscaping design. download this 2d AutoCAD drawing detail.
Uploaded by:
