Restaurant section detail AutoCAD drawing provided in this file. Download the AutoCAD drawing file.
Description
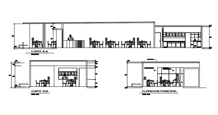
Restaurant section detail AutoCAD drawing provided in this file. which consist of the furniture layout, main hall, services, and utilities detail with furniture detail and entrance door, window marking, and glass curtain wall design. Download the AutoCAD file now. Thanks for downloading the file and another CAD program from the cadbull.com website.
Uploaded by:

