30’x75’ house plan is given in this Autocad drawing file. Download the Autocad drawing file.
Description
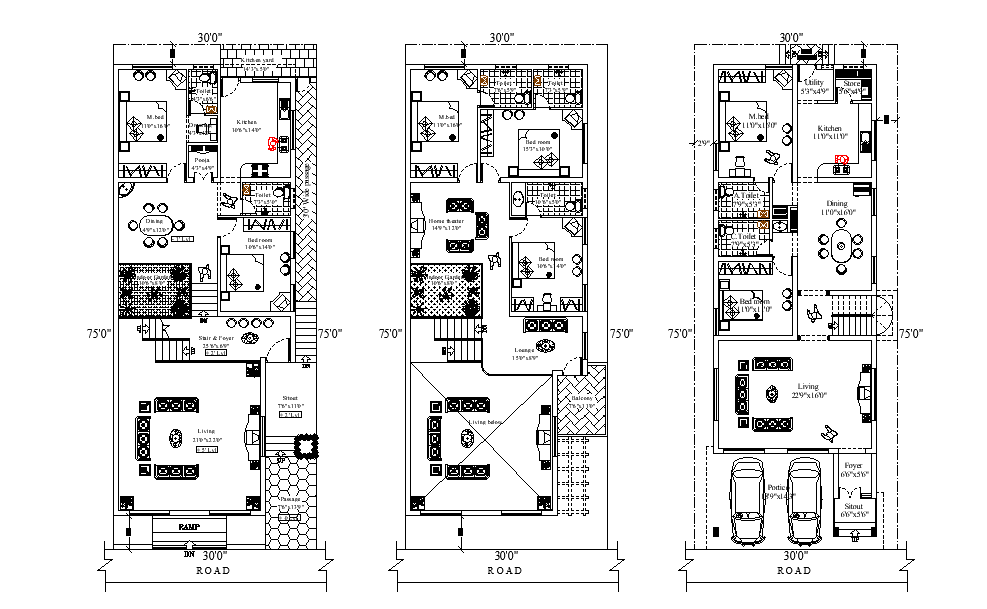
30’x75’ house plan is given in this Autocad drawing file. This is G+2 residential building. In the ground floor car parking, foyer, sit out, Master bedroom with attached toilet, kid’s room, kitchen, dining and store room, utility room and common toilet is available. In the first floor Master bedroom with attached toilet, kid’s room, kitchen, dining and store room, puja room, kitchen yard, utility room and common toilet is available. In the second floor indoor garden, Master bedroom with attached toilet, kid’s room, guest room with attached toilet, family lounge and balcony is available. Download the Autocad drawing file. Thank you for the Autocad drawing file and other CAD program files from our website.
Uploaded by:

