21x23m Architectural maxigraf Guayaquil plan is given in this Autocad drawing file.Download the Autocad drawing file.
Description
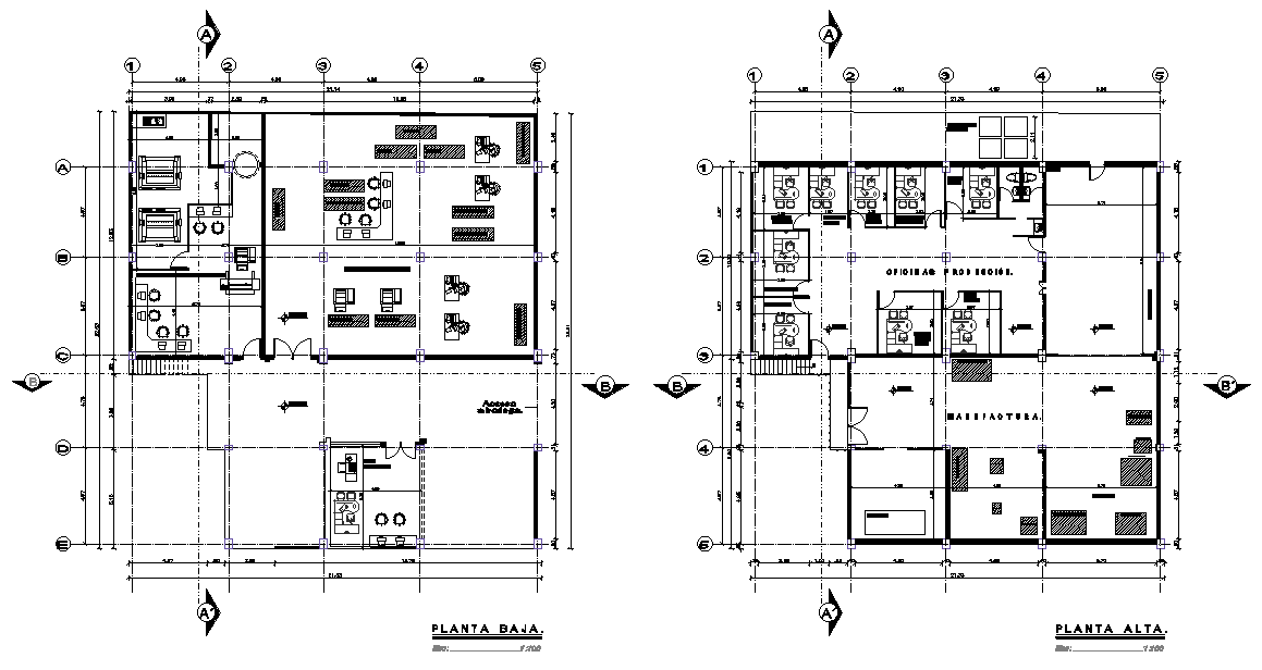
21x23m Architectural maxigraf Guayaquil plan is given in this Autocad drawing file. This is G+1 office floor plan. Area values, office cabins, rest room for male & female, manufacture area, cabin for each employees, purchasing department, maintenance coordination, and shopping assistant are mentioned in this drawing model. For more details download the Autocad drawing file. Thank you for downloading the 2D Autocad file and other CAD program files from our website.
Uploaded by:

