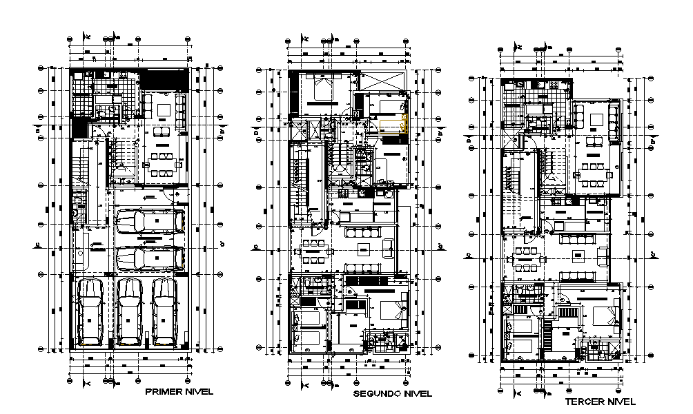
7x20m residential building plan is given in this Autocad drawing file. Download the Autocad drawing file.
Description
7x20m residential building plan is given in this Autocad drawing file. This is apartment building plan. In this residential building kitchen, dining room, master bedroom is provided with the rest room, kid’s room, two guest rooms, water closets, lavanderia, living room and car parking are available. For more details download the Autocad drawing file. Thank you for downloading the 2D Autocad file and other CAD program files from our website.
Uploaded by:

