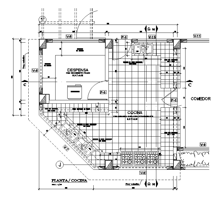
The hotel kitchen floor plan is presented in this AutoCAD DWG file. Download this 2d AutoCAD drawing file.
Description
The hotel kitchen floor plan is presented in this AutoCAD DWG file. In this file, the kitchen hood, canopy, and filter box were mentioned. The section detail was also shown clearly in this drawing. Thanks for downloading the AutoCAD file and another CAD program from the cadbull website. Download the 2D AutoCAD DWG file now.
Uploaded by:

