40x44m Secretary District plan is given in this Autocad drawing file.Download the Autocad file.
Description
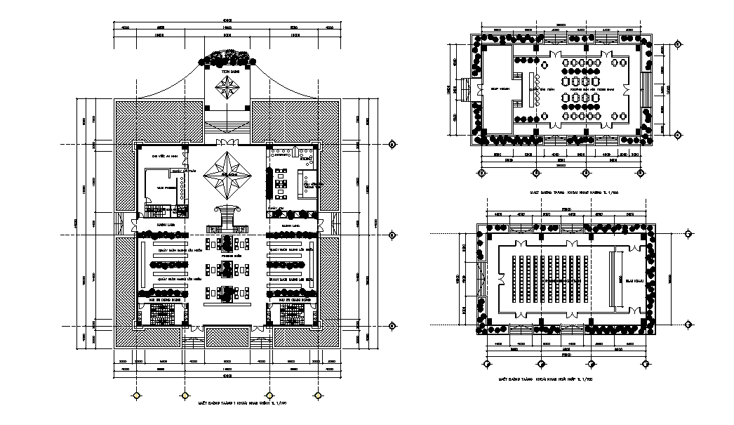
40x44m Secretary District plan is given in this Autocad drawing file. This is G+1 floor plan. The length and breadth of the plan is 40m and 44m respectively. In this plan water closet for male and female, consolidated policy room, security area, Internet area, ATM machine, and Arabic area is available. Meeting hall and office room details are given. For more details download the Autocad drawing file. Thank you for the Autocad drawing file and other CAD program files from our website.
Uploaded by:

