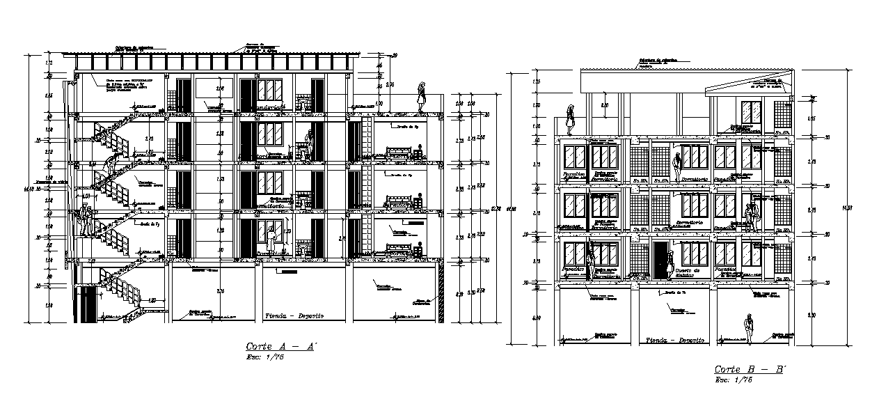
A section view of 13x20m architectural hotel plan is given in this Autocad drawing file. Download the Autocad drawing file.
Description
A section view of 13x20m architectural hotel plan is given in this Autocad drawing file. The total height of the building is 14.93m. This is G+4 hotel plan. In this double room, single room, living room, matrimonial room, and attached toilets for all room, are available. These are the same for remaining floors. For more details download the Autocad drawing file. Thank you for the Autocad drawing file and other CAD program files from our website.
Uploaded by:

