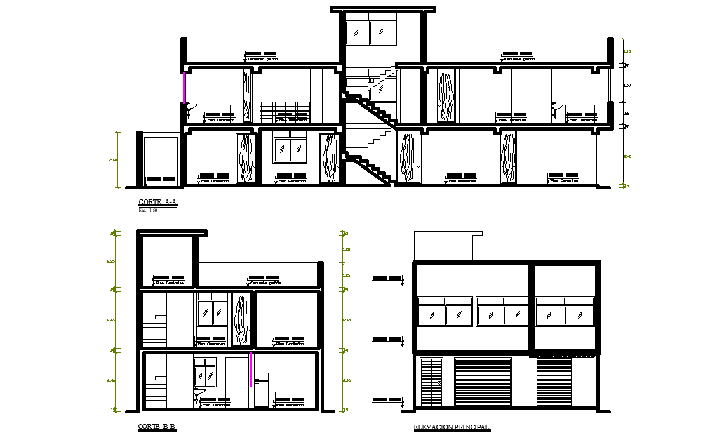
A section view of 8x20m residential plan is given in this Autocad drawing file.Download the Autocad file.
Description
A section view of 8x20m residential plan is given in this Autocad drawing file. Total height of the building is 8m. This is G+1 house plan. In this 3 bedrooms are available in the ground floor. 4 bedrooms are available in the first floor. Kitchen, dining room, living space, patio, car parking, outside common toilet are available in the ground floor. In the first floor two houses are available. Kitchen, dining room, two bedrooms with attached toilet in each house, common toilet, and other details are given in this Autocad drawing model. For more details download the Autocad drawing file. Thank you for downloading the Autocad drawing file and other CAD program files from our website.
Uploaded by:

