26x24m corporate office plan is given in this Autocad DWG drawing file. Download the Autocad file.
Description
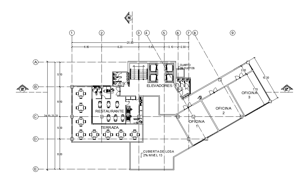
26x24m corporate office plan is given in this Autocad DWG drawing file. This is G+ 16 corporate office plans. The length and breadth of the plan is 26m and 24m respectively. In this plan elevator, toilet for gents & ladies, office rooms, slab cover, and duct rooms are mentioned. For more details download the Autocad drawing file. Thank you for downloading the Autocad drawing file and other CAD program files from our website.
Uploaded by:

