A detail of the apartment building plan is given in this Autocad drawing file. Download the Autocad drawing file.
Description
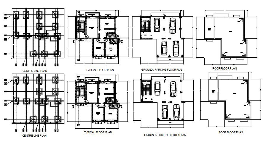
A detail of the apartment building plan is given in this Autocad drawing file. Footing and foundation layouts are given. In this drawing centre line plan, typical floor plan, ground floor & parking plan, roof floor plan, and other details are given. For more details download the Autocad drawing file. Thank you for downloading the Autocad drawing file and other CAD program files from our website.
Uploaded by:

