Front elevation of 18x23m college building plan is given in this Autocad drawing file. Download the Autocad file.
Description
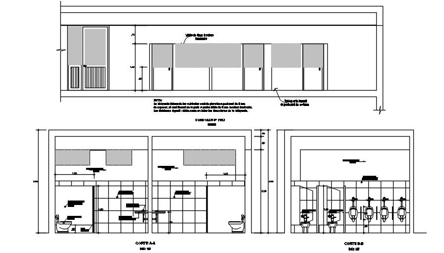
Front elevation of 18x23m college building plan is given in this Autocad drawing file. This is G+4 floor college building. This is engineering college building plan. Virtual resources room, class rooms, hemeroteca, cubiculos, conference room, meeting room, rest room for male & female, registration of participants, and reception are mentioned in this drawing model. For more details download the autocad drawing file. Thank you for downloading the autocad drawing file and other cad program files from our website.
Uploaded by:

