Dimension of the Maternal and child health centre plan is given in this Autocad drawing file. Download the Autocad file.
Description
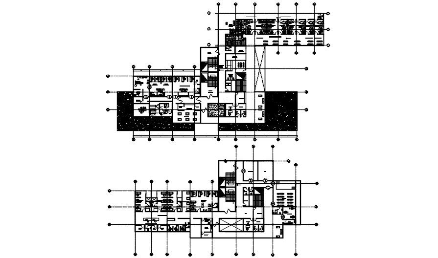
Dimension of the Maternal and child health centre plan is given in this Autocad drawing file. This is special hospital for child. In this hospital plan delivery ward, operation theatre, reception, waiting area, patient’s bed with attached toilet, scanning room, doctor consulting room, nurse station and other details are given in this Autocad drawing file. For more details download the Autocad file. Thank you for downloading the Autocad file and other CAD program files from our website.
Uploaded by:

