41x19m hotel plan is given in this Autocad drawing file. Download the Autocad file.
Description
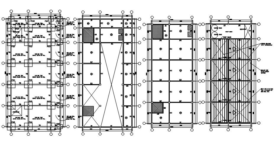
41x19m hotel plan is given in this Autocad drawing file. A slab detail of the hotel plan is given in this drawing file. Thickness of slab is mentioned for each. Beam and column layout of the hotel plan is given in this Autocad drawing file. For more details download the Autocad file. Thank you for downloading the Autocad file and other CAD program files from our website.
Uploaded by:

