Electrical layout of 11x20 residential building plan is given in this Autocad drawing file. Download the Autocad file now.
Description
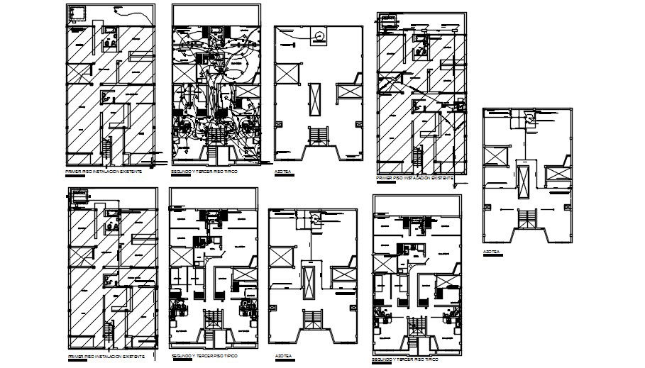
Electrical layout of 11x20 residential building plan is given in this Autocad drawing file. Total height of the building is 8.5m. This is G+2 floors residential building. In each floor three houses are available. Master bedroom with attached toilet, guest bedroom, kid’s room with attached toilet, common bathroom, kitchen, dining, living area, are available in the ground floor. In the first floor master bedroom with attached toilet, guest bedroom, kid’s room with attached toilet, common bathroom, kitchen, dining, living area, are available in this floor. For more details download the Autocad file. Thank you for downloading the Autocad file and other CAD program files from our website.
Uploaded by:

