LOGIN
HOME
CATEGORIES
UPLOAD FILE
PRICING
HOUSE PLAN
ABOUT US
CONTACT US
Dental clinic cad detail
Home
Categories
Interior Design
Clinic Interior
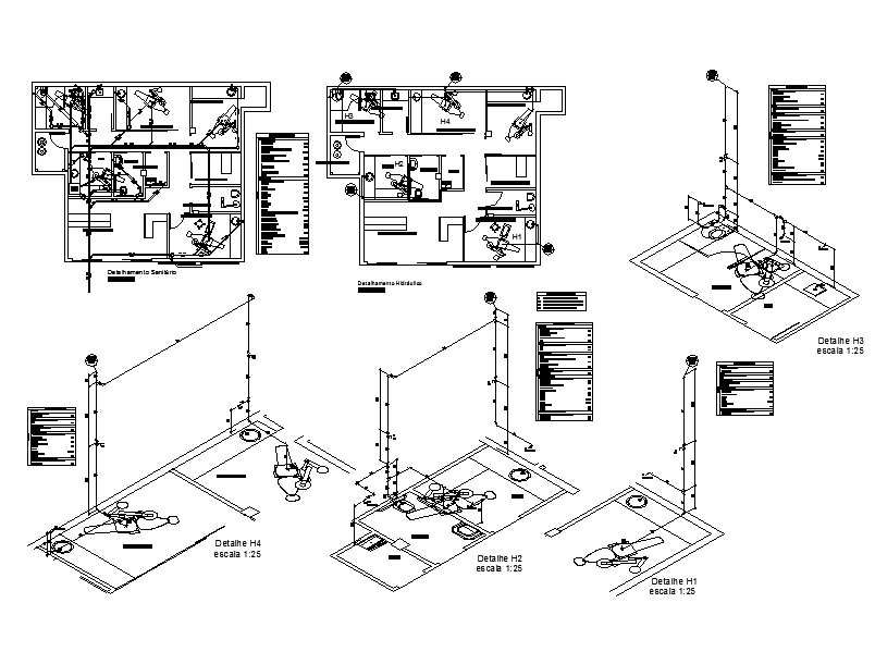
Dental clinic cad detail
Uploaded by:
Eiz
Luna
View Profile
View Profile
Description
Dental clinic cad detail include layout plan, elevations sections and all kind detail of Dental clinic.
File Type:
DWG
File Size:
394 KB
Category::
Interior Design
Sub Category::
Clinic Interior
type:
Gold
Uploaded by:
Eiz
Luna
View Profile
Download
Add to libary
find Latest
Related
Files