LOGIN
HOME
CATEGORIES
UPLOAD FILE
PRICING
HOUSE PLAN
ABOUT US
CONTACT US
Architecture House Project detail
Home
Categories
Architecture
House Plan
Architecture House Project detail
Uploaded by:
Priyanka
Patel
View Profile
View Profile
Description
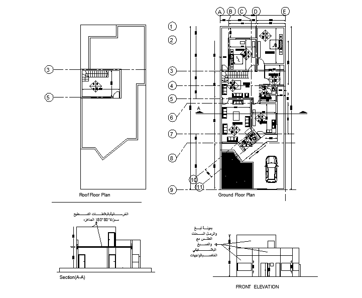
Architecture House Project detail in DWG file type of Ground Floor Plan, Roof Lay-out detail, section & front side elevation.
File Type:
DWG
File Size:
159 KB
Category::
Architecture
Sub Category::
House Plan
type:
Free
Uploaded by:
Priyanka
Patel
View Profile
Download
Add to libary
find Latest
Related
Files