The restaurant plan is presented in this AutoCAD drawing file. Download this 2d AutoCAD drawing file.
Description
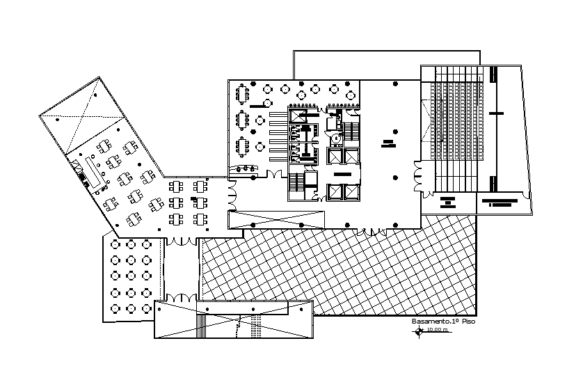
The restaurant plan is presented in this Autocad drawing file. The service area is given. coordinator cabin, tables, dining hall with attached toilet, reception, waiting area, tables for 4 persons, family tables are mentioned in this drawing model. For more details download the AutoCAD drawing file. Thank you for downloading the AutoCAD drawing file and other cad program files from our website.
Uploaded by:

